203griglia39
203grigliadt3
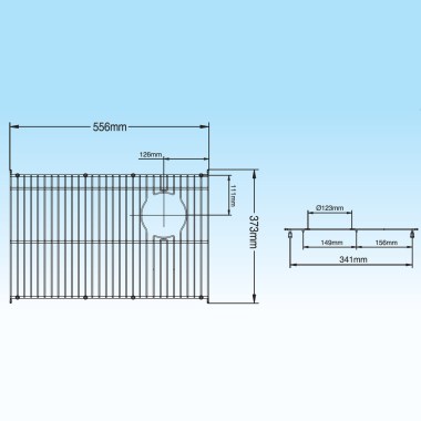
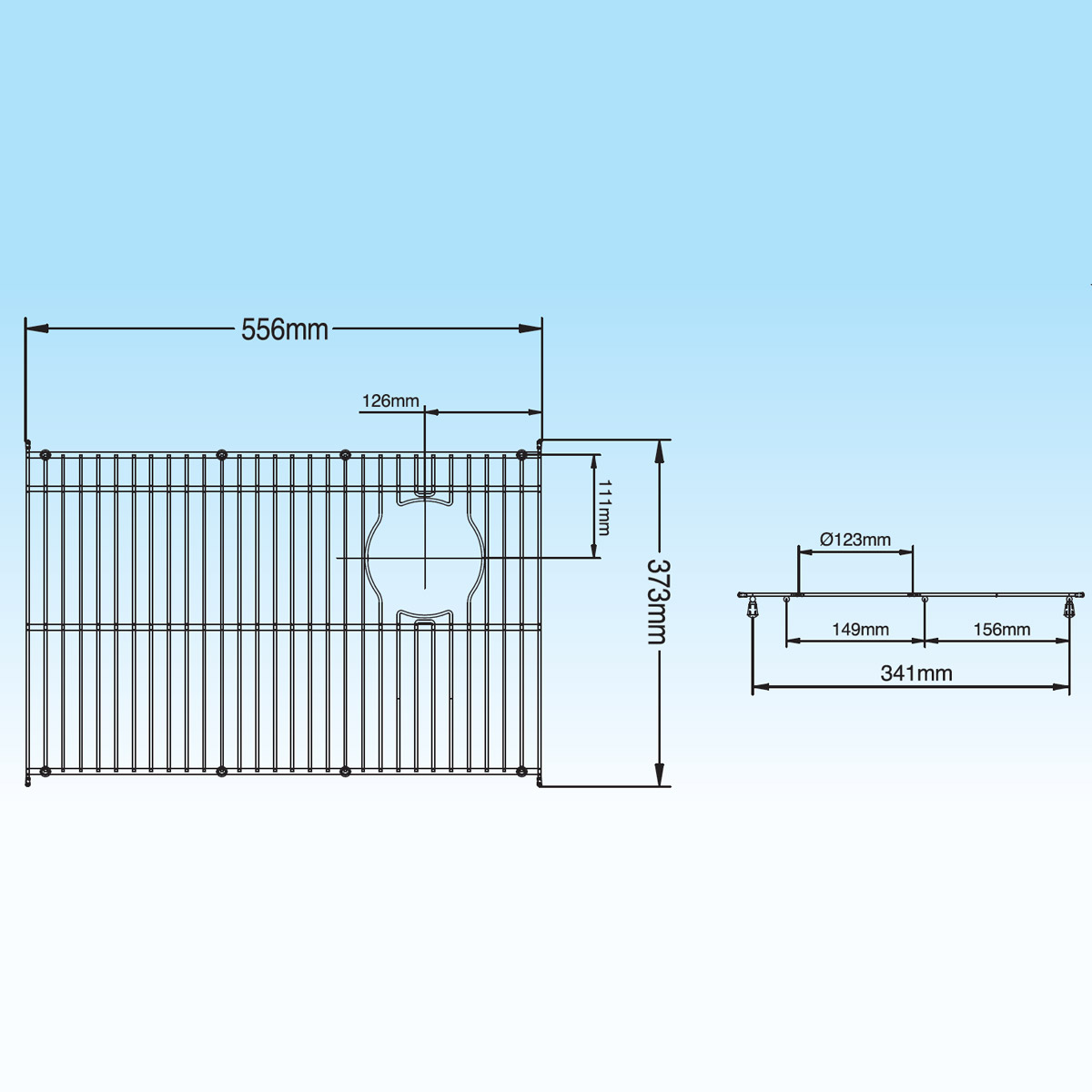
Product Code:

Grille Mod.6

Grille 556x373 mm - Trou latéral MOD. 6

ART.
A.8284.M06